FB

Filming Location

Chroma Key Photo/Video Green Screen ( Special limited-time offer)

Los Angeles, CA

  • Favorites

Space added to "Cool Spaces"!

Create New Collection

Name can't be blank

Brightlight  S.

Brightlight S.

Start booking to message the host.

About This Location

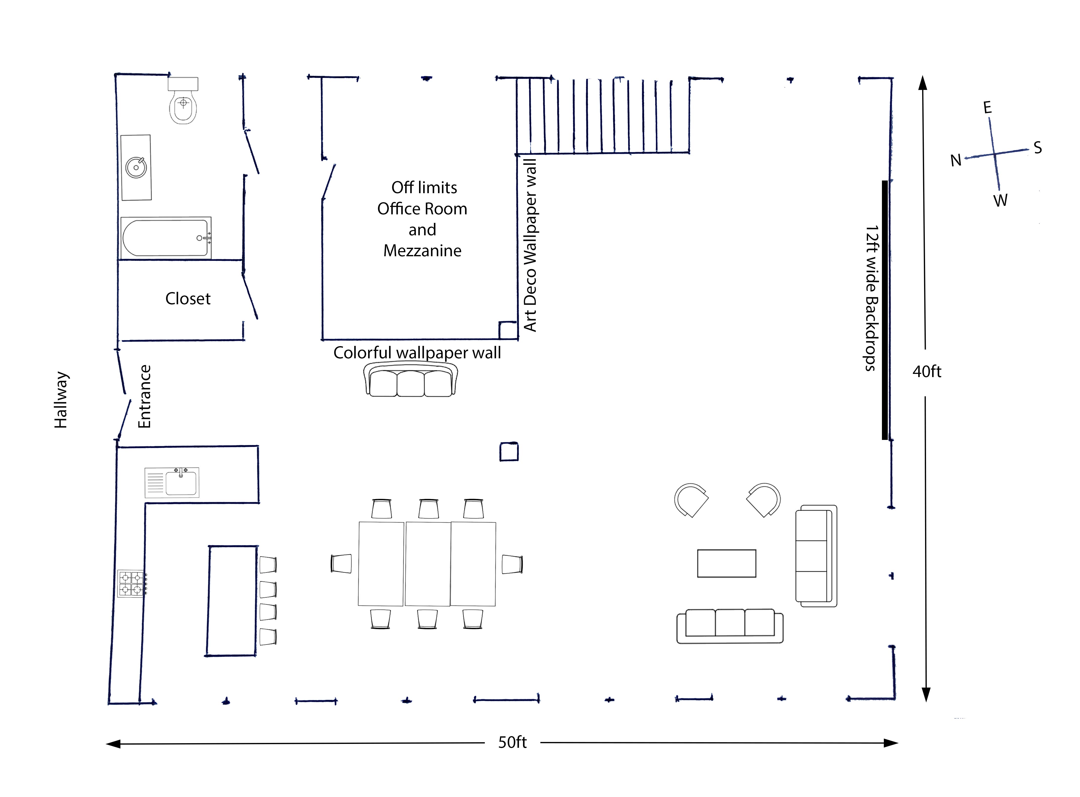
About Brightlight Film Studio

🎬 Chroma Key Green Screen Studio – Professional Production Space
Step into a fully-equipped Chroma Key green screen studio, designed for professional-grade video production, virtual sets, visual effects, and live broadcasting. This space features a seamless 2-wall green cyclorama with floor coverage, ideal for full-body shots, product videos, music videos, and creative filmmaking.

Notes from AVVAY

Here's an ultra-convenient turn-key green screen studio for your next project. With H&MU, wardrobe, and a robust lighting package, this location is a must for your short list.

Location Perfect For

  • Video Studios
  • Photo Studios
  • Recording Studios

Space Type

Commercial

Capacity

30 people

Amenities

  • Parking on Premises
  • Load-in Ramp
  • Security / Alarm System
  • Coffee Maker
  • Microwave
  • Wireless Internet
  • Air Conditioning
  • Refrigerator
  • Accessible Power Outlets

Cancellation Policy

Strict

Full refund of deposit for cancellations made seven full days prior to the reservation time.

Deposit Amount

100% Deposit required

Equipment

Our rental inventory includes Sony FX6, FX3, Alpha 7s III, Blackmagic URSA 4K and Pocket 6K cameras, Athena Prime and Canon EF lenses, Zoom F8n and H8 recorders, Sony and Rode mics, Neewer and Nanlite LED lights, DJI Ronin stabilizers, 4K monitors, EasyRig, tripods, follow focus, wireless systems, drones, teleprompter, and a 4K LED video wall (P1.53). Ideal for film, commercial, and music video production with professional-grade equipment in all categories.

Space Features

Bathroom Details

1

Number of Chairs

20

Number of Parking Spaces

2

Stay set up during multi-day reservations?

Yes

Food Allowed?

Yes

Liquor License?

No

Stage Available?

No

Dimensions

Total Square Feet

1705.0 sq ft.

Rooms

Name Width Length Ceiling Height
Make-up Room - - -

Location

Open Hours

Sunday 6am to 6am
Monday 6am to 6am
Tuesday 2am to 3am
Wednesday 6am to 6am
Thursday 6am to 6am
Friday 6am to 6am
Saturday 6am to 6am

Reviews

No reviews currently exist for this space.

Swipe to view more or tap to view larger photo

Filming Location

Chroma Key Photo/Video Green Screen ( Special limited-time offer)

Los Angeles, CA

  • Favorites

Space added to "Cool Spaces"!

Create New Collection

Name can't be blank

Brightlight  S.

Brightlight S.

Start booking to message the host.

From
$99/hour
Minimum
4 hrs

Multi Day

*Required information. You will not be charged

Get a Custom Quote

Request a custom quote from the host for the following date(s)

Please provide more details for this quote*

*Required information. You will not be charged

Book with hourly rate

Try Location Scouting Unlisted spaces, free file pulls, and a dedicated team.

Call AVVAY at 1-800-209-0615

Monday thru Friday | 9am to 5pm Central